Nos bureaux
Réinventez votre façon de travailler.
Nos emplacements
Découvrez nos 4 espaces de coworking, pensés pour allier confort, productivité et communauté, où que vous soyez.
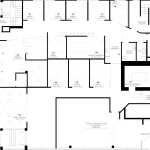
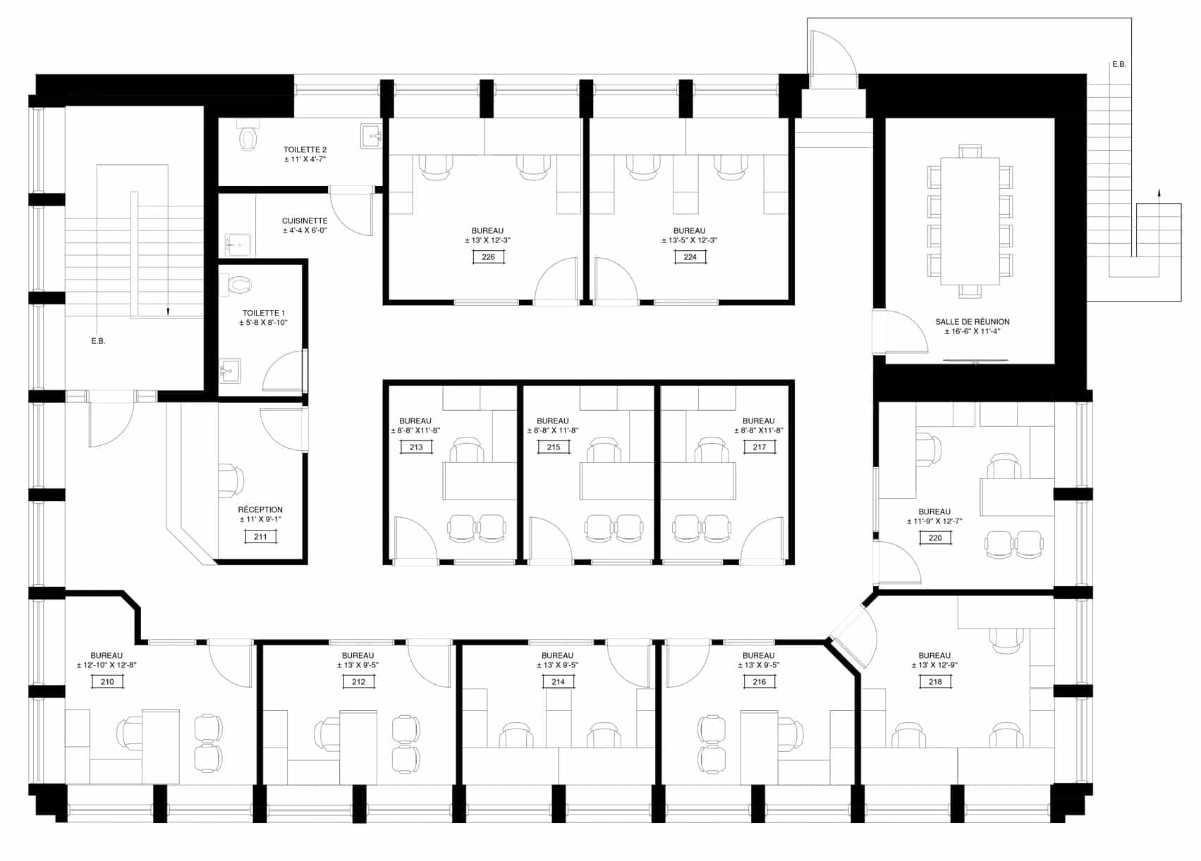
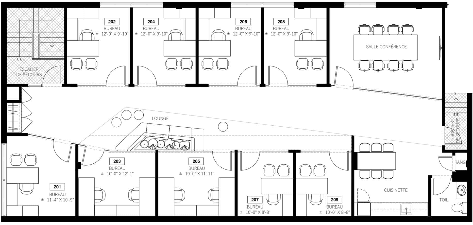
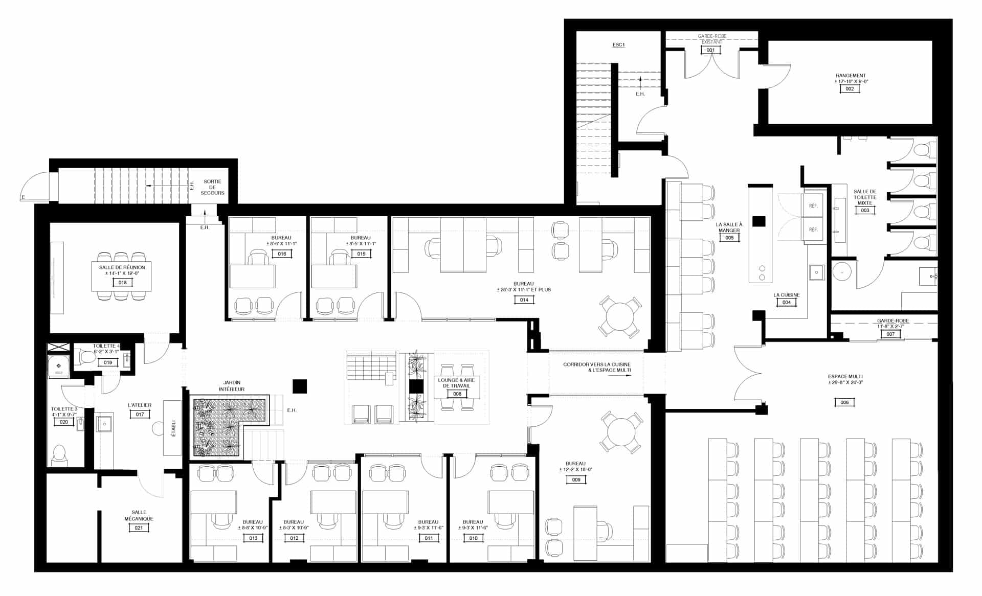
Valleyfield, le 57
57, rue Sainte-Cécile
Situé sur la rue Sainte-Cécile, le 57 est notre plus récent espace de coworking. Réparti sur trois étages lumineux et modernes, il offre un environnement de travail à la fois confortable et inspirant. On y retrouve deux grandes salles de formation au sous-sol, trois salles de réunion, plus de 20 bureaux privés ainsi que quatre bureaux en espace ouvert. Sa cuisine entièrement équipée et contemporaine est parfaite pour vos pauses café ou vos dîners, tandis que sa terrasse colorée devient l’endroit idéal pour vos 5 à 7 extérieurs durant la belle saison.
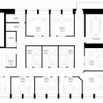
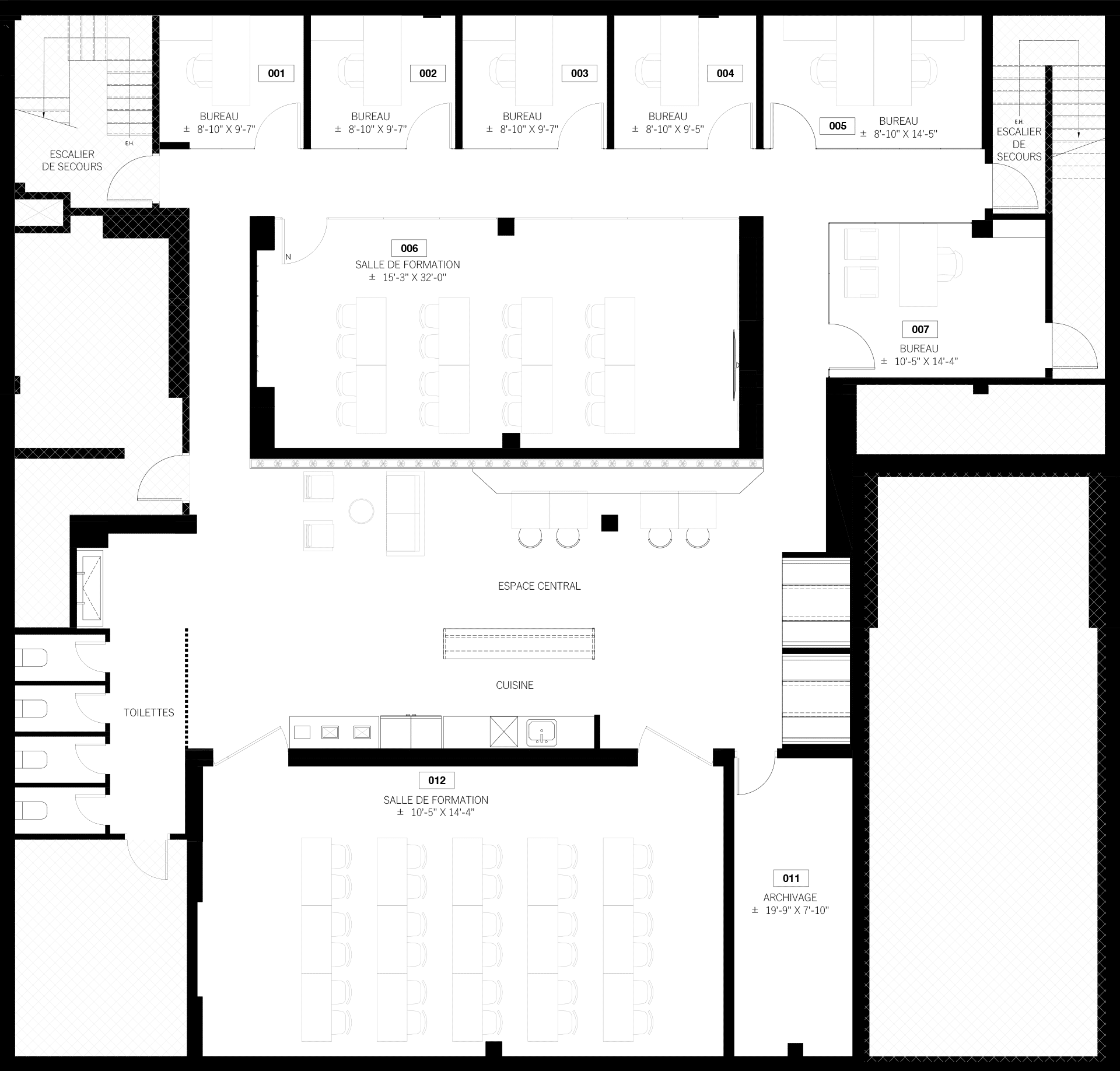
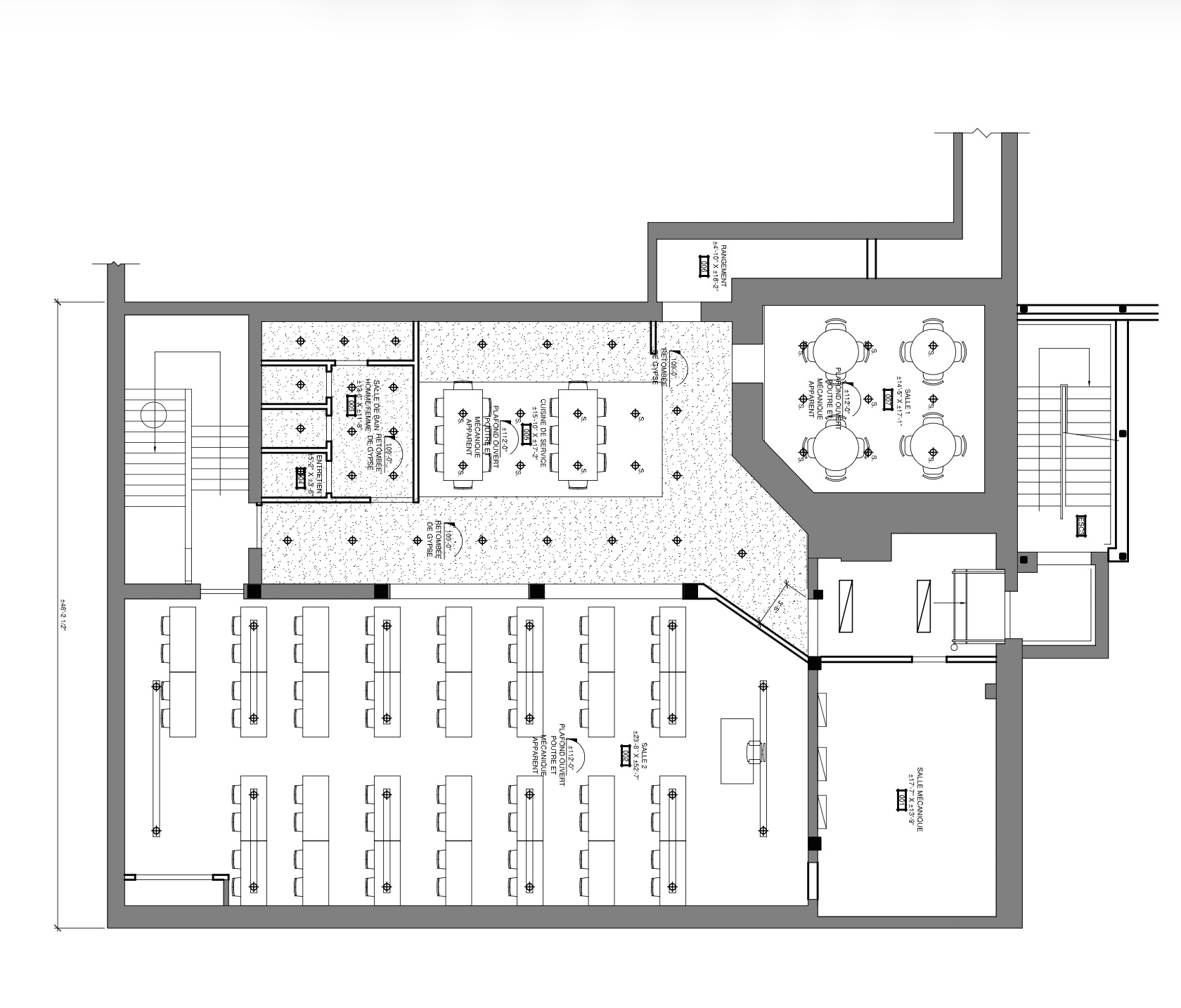
Valleyfield, le 87
87, rue Sainte-Cécile
Ouvert en 2017, le 87 est notre tout premier espace, celui par lequel tout a commencé. Réparti sur deux étages, il combine charme, fonctionnalité et ambiance conviviale. Au sous-sol, on y trouve une vaste salle de formation équipée d’une cuisine attenante, parfaite pour les événements ou les ateliers. L’étage, quant à lui, propose une dizaine de bureaux pouvant accueillir jusqu’à quatre personnes, ainsi qu’une salle de réunion bien aménagée. Et le petit bijou de cet espace ? Sa superbe terrasse sur le toit, offrant une vue imprenable sur la ville de Salaberry-de-Valleyfield !
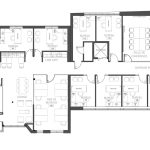
Les Coteaux
247, route 338
Laissez-vous séduire par un environnement lumineux et moderne, où chaque bureau, qu’il soit privé ou en aire ouverte, respire la chaleur humaine et la productivité. Notre salle de réunion est l’endroit idéal pour stimuler la créativité et la collaboration. Et pour un équilibre parfait entre travail et famille, profitez de notre service de garde intégré directement dans la même bâtisse. Chez Au Bureau.co, nous croyons qu’il est possible d’épanouir sa vie professionnelle et familiale, sous un même toit.
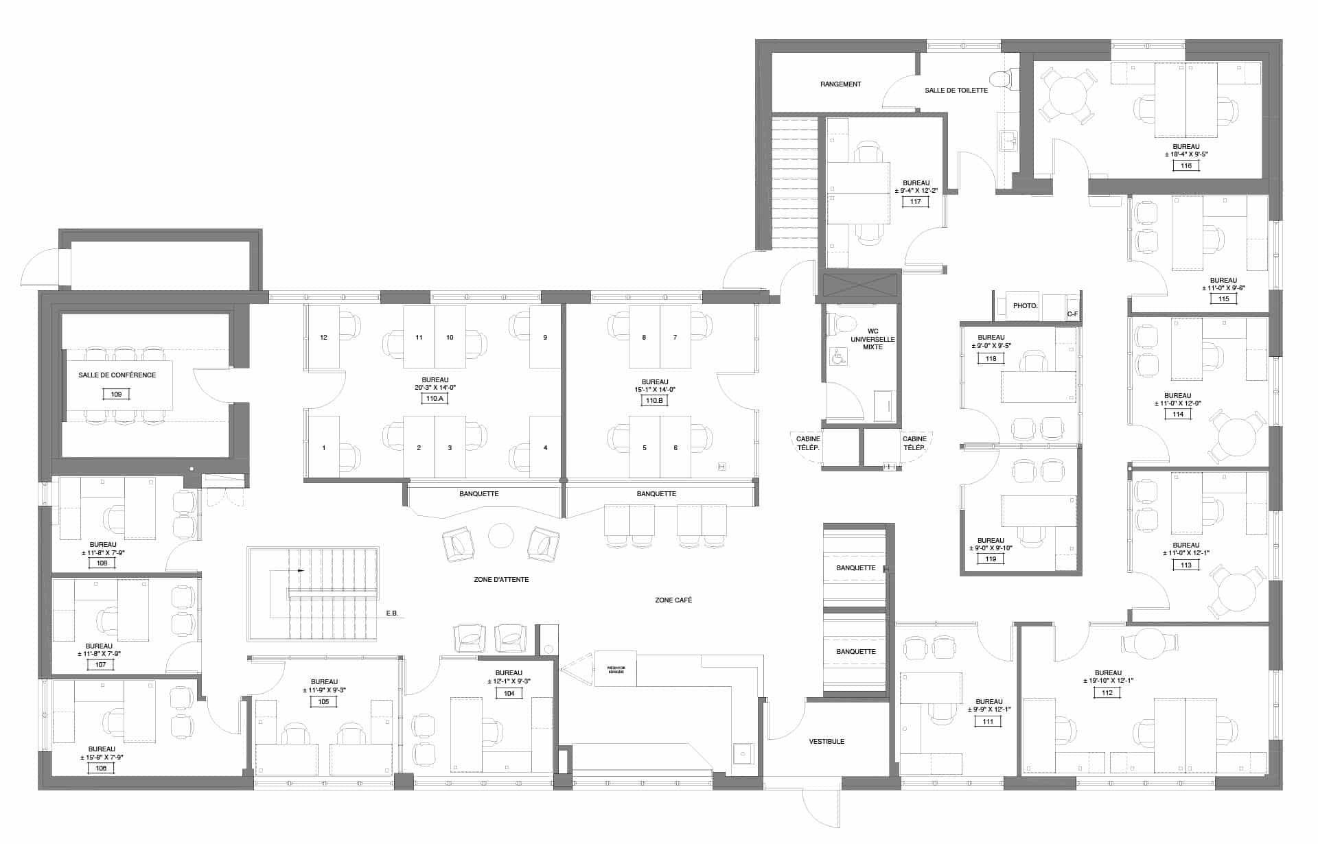
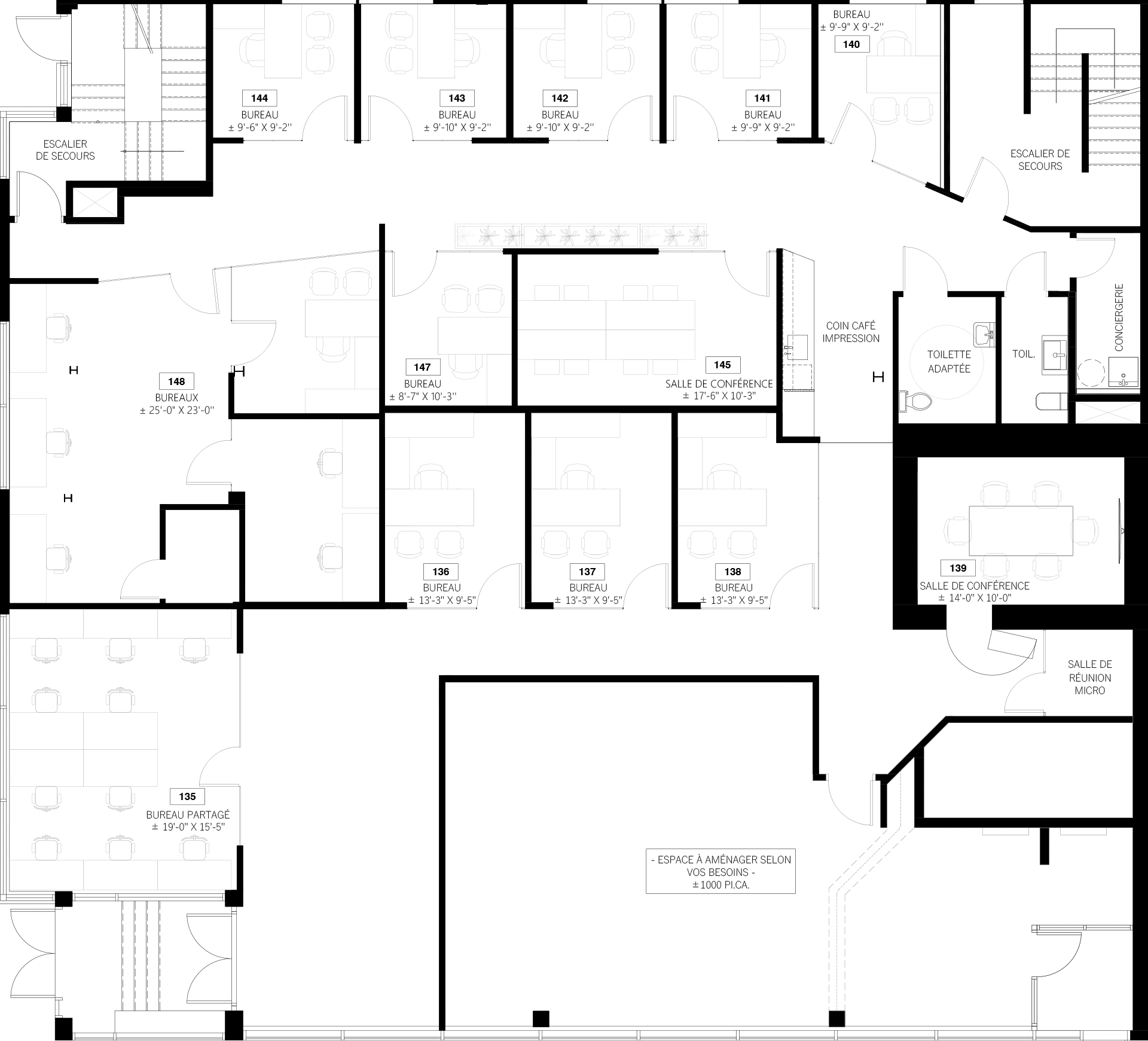
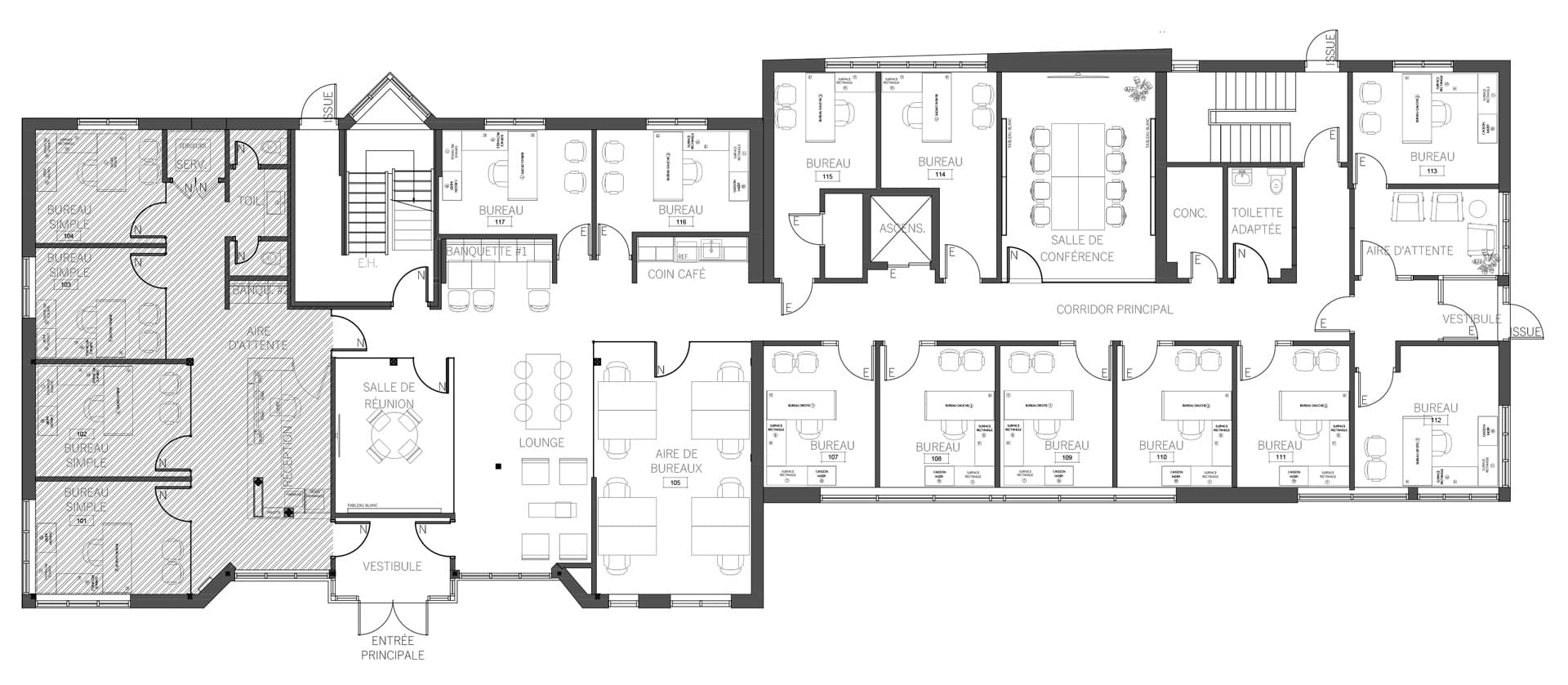
Châteauguay
65, rue Principale
Situé sur la rue Principale à Châteauguay, cet espace de coworking s’étend sur deux étages et propose un environnement à la fois dynamique et accueillant. Au rez-de-chaussée, on retrouve plusieurs bureaux privés, des espaces de travail partagés, une salle de réunion et, surtout, un charmant espace café commercial. Idéal pour savourer un bon café, une collation ou un sandwich entre deux rencontres. Le sous-sol, quant à lui, abrite d’autres bureaux privés, un coin lounge parfait pour relaxer, une grande cuisine commune ainsi qu’une spacieuse salle de formation et une salle de réunion. Et pour profiter des belles journées ? Notre terrasse extérieure vous attend pour une pause au soleil ou un 5 à 7 en toute détente.
Nos types de service
Des solutions flexibles allant du bureau privé à l’espace partagé, pour répondre à tous vos besoins professionnels.








